Capannone in vendita

Castello Di Godego, Via Santa Giustina - Alberone
Informazioni in agenzia
1 locale 1 locale
10000 Mq 10000 Mq
10 bagni 10 bagni

Capannone in vendita

Castello Di Godego, Via Santa Giustina - Alberone

Descrizione annuncio

COSA SAPERE DELL'IMMOBILE

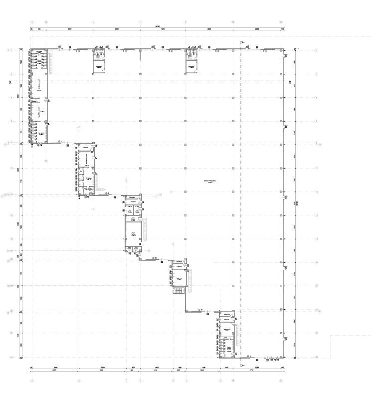
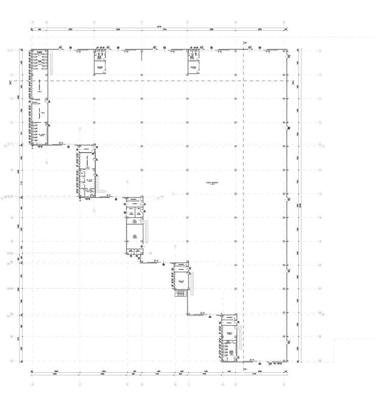
Proponiamo in vendita un stabilimen to industriale edificato nel 2023 di circa 10.000 mq, situato su un lotto complessivo di 50.505 mq. L'immobile è articolato in più campate produttive con altezze variabili da 8,45 m (all'intradosso della trave più bassa) fino a 10,65 m, ed è predisposto per carroponti con portata fino a 40 tonnellate.

CARATTERISTICHE PRINCIPALI

Struttura prefabbricata in cemento armato, con tamponamenti coibentati da 30 cm.Impianto fotovoltaico in copertura con potenza nominale di 575,7 kWp.Impianti presenti: elettrico e di illuminazione (da completare); impianto antincendio da ultimare.N.7 Carroponti da 30 e da 35 TonnellateArea esterna pertinenziale da pavimentare e recintare, destinata a viabilità interna, parcheggi e spazi di deposito.

LOTTIZZAZIONE E CAPACITÀ EDIFICATORIA

Il lotto ricade in zona industriale produttiva, con:

Superficie totale: 50.505 mqSuperficie destinata a parcheggio pubblico: 2.265 mq (già vincolata)Superficie edificata attuale: circa 9.700 mqCapacità edificatoria residua: 10.496 mq (indice edificabilità 50%)Altezza edificabile massima: 10 metri, elevabile fino a 15 metri per impianti speciali o macchinari.

Tutti gli oneri di urbanizzazione primari e secondari risultano già assolti, consentendo l'immediata edificabilità della superficie residua, previa presentazione del progetto al Comune.

UBICAZIONE E CONTESTO

La proprietà si trova in posizione strategica, ottimamente collegata ai principali centri urbani e infrastrutture della provincia di Treviso, Vicenza e Padova:

14 km dal centro di Cittadella (PD)25 km dal centro città di Bassano del Grappa (VI)5 km dal centro di Castelfranco Veneto (TV)10 km dal casello della Superstrada Pedemontana Veneta - Montebelluna Ovest / Altivole

CONTATTI E INFORMAZIONI

Per ulteriori dettagli, documentazione tecnica o per concordare un sopralluogo:

Nicola Pandin - 344.0135136
Federico Zanon - 347.2799598

Mostra tutto

Nelle vicinanze

Trasporto pubblico Trasporto pubblico
Castello di Godego
Castello di Godego
900 m
Scuole Scuole
Scuole
910 m
Scuole Elementari
990 m
IC Castello di Godego
1,1 Km
Medie paritarie Salesiani
1,5 Km
Scuola Materna di Villarazzo
1,5 Km
Farmacia Farmacia
Farmacia Monti
920 m
Farmacia La Natività
980 m
Farmacia
2,7 Km
Parafarmacia del Borgo Bassano
2,8 Km
Supermercati Supermercati
Di Piu'
1,1 Km
Eurospar
1,6 Km
Coop
2,7 Km
Negozi Negozi
GranoNero
920 m
Super A&O
980 m
Simoni
1,3 Km
Sirene Blu
1,5 Km
Tupperware
1,5 Km
Bar Bar
Bar Sport
840 m
Secret Cafè
950 m
Bar Sbrissa
1,4 Km
Pepe Nero
1,5 Km
Cafè Chateau deux
2,4 Km
Ristoranti Ristoranti
Brama Fame di pizza
950 m
Baita al Lago
970 m
Ristorante Pizzeria Isola Blu
1,1 Km
Pizzeria Pedavena
1,3 Km
Agriturismo ai bagolari
2,2 Km
Mostra tutto

Caratteristiche

Rif.:
61129354
Piano:
Terra di 1
Totale piani:
1
Posti auto:
50
Balconi:
5
Condizionamento:
Autonomo
Mostra tutto
Prezzo Prezzo
Informazioni in agenzia
Spese annue Spese annue
€ 0
Proponi il tuo prezzoProponi il tuo prezzo

Altre caratteristiche

Descrizione dei locali
Bagno Con Finestra

Classe Energetica

A4
A4
A4
A4
A4
A4
A4
A4
A4
EP globale non rinnovabile:
127.23 kW h/m² anno
EP globale rinnovabile:
127.23 kW h/m² anno
EP invernale del fabbricato:
EP estiva del fabbricato:
Anno di costruzione:
2023
Riscaldamento:
Autonomo
Tipo impianto:
Ad aria
Tipo alimentazione:
Aria

Ti interessa visionare l'immobile?

Fissa un appuntamento  Fissa un appuntamento

Richiedi informazioni

Clicca su Leggi per aprire l'informativa
* Questi campi sono obbligatori
Affiliato
Studio Industriale Castelfranco Srl
Via Spagna, 6 31033 Castelfranco Veneto (TV)

Il nostro staff


  • Federico Zanon
    Affiliato

  • Nicola Pandin
    Affiliato
Via Spagna, 6 31033 Castelfranco Veneto (TV)
Zona: Castelfranco Veneto
Mostra su mappa
Affiliato
Studio Industriale Castelfranco Srl
Via Spagna, 6 31033 Castelfranco Veneto (TV)

2026 Tecnocasa Franchising S.p.A. - P. IVA 08365160152 - Via Monte Bianco 60/A 20089 Rozzano (MI). Ogni agenzia ha un proprio titolare ed è autonoma. Privacy policy | Policy utilizzo | Cookie policy