Capannone in vendita

Paese, Via Marche
€ 1.400.000
3 locali 3 locali
1300 Mq 1300 Mq
1 bagno 1 bagno

Capannone in vendita

Paese, Via Marche

Descrizione annuncio

COSA SAPERE SULL'IMMOBILE

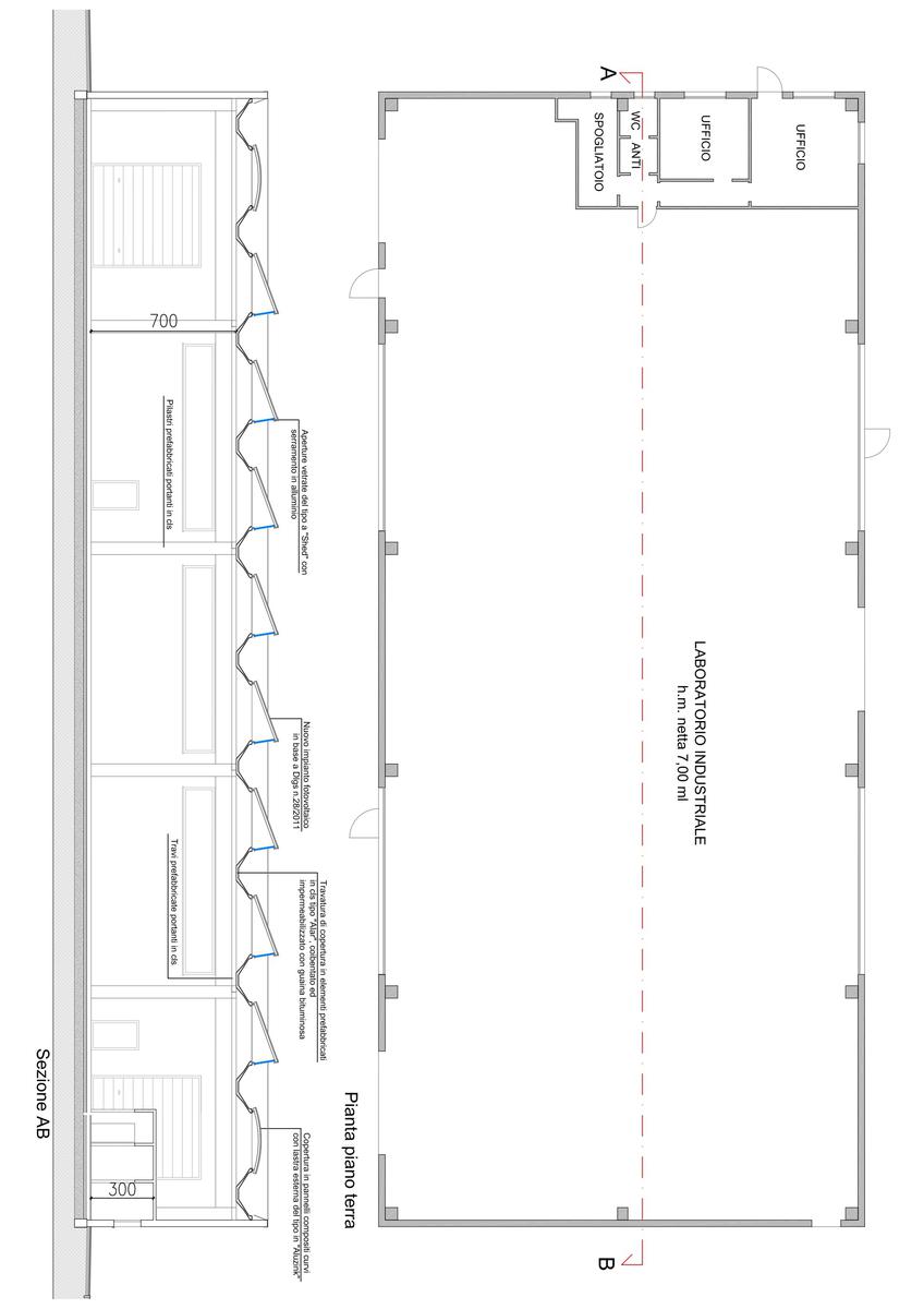
IN VENDITA - Capannone singolo di 1300mq di nuova costruzione ad uso produttivo a Padernello di Paese (TV)

CARATTERISTICHE TECNICHE

Capannone singolo di ampia metratura, pronto all’uso, ideale per attività industriali, artigianali e logistiche. Soluzione funzionale, ben organizzata e strategicamente collegata alle principali vie di comunicazione.

SUPERFICI:

Capannone: circa 1.300 mq

Area esterna: circa 2.000 mq, ideale per manovra mezzi, parcheggi e stoccaggio.

DOTAZIONI:

3 portoni a raso per carico/scarico rapido e agevole

Ampi spazi di manovra per mezzi pesanti

Accessi comodi e funzionali

CARATTERISTICHE TECNICHE:

Altezza sottotrave: 7 metri – perfetta per scaffalature, macchinari e stoccaggi in altezza

Copertura a shed per ottima illuminazione naturale

Pannelli a taglio termico per un buon isolamento

Anello antincendio per elevati standard di sicurezza

UFFICI:

80 mq di uffici operativi, ideali per gestione amministrativa e direzionale direttamente in sede

PUNTI DI FORZA:

Immobile pronto all’uso
Ottima funzionalità produttiva e logistica
Ampia area scoperta
Posizione strategica in zona industriale
Ideale anche per investimento

344.0135136
Tvha0
Seguici su Facebook ed Instagram, clicca 'mi piace' alla pagina Tecnocasa Industriale Castelfranco e attiva le notifiche per rimanere aggiornato. Scaricando gratuitamente l'App Tecnocasa sullo smartphone sarai sempre aggiornato sulle nostre proposte di vendita e locazione.

Mostra tutto

Nelle vicinanze

Trasporto pubblico Trasporto pubblico
Paese
Paese
1,9 Km
Istrana
Istrana
2,8 Km
Trasporto pubblico
250 m
Scuole Scuole
Scuola primaria L. Pravato
1,5 Km
Scuole
1,6 Km
Farmacia Farmacia
Farmacia
1,4 Km
Supermercati Supermercati
Crai
1,4 Km
Alì
1,6 Km
Interspar
2,9 Km
Negozi Negozi
Oxis
2,5 Km
DESPAR
2,7 Km
Bar Bar
Ai tre Fucili - Haineken
710 m
Bar Pedrocchi
1,2 Km
Da Caio
1,2 Km
Bar
1,3 Km
Bar Centrale
1,4 Km
Ristoranti Ristoranti
Pizzeria
710 m
Pizzeria al Ghiottone
2,1 Km
Club degli Spaghetti
2,1 Km
Barbablù
3,0 Km
Mostra tutto

Caratteristiche

Rif.:
61161122
Piano:
Terra
Condizionamento:
Autonomo
Ascensore:
No
Riscaldamento:
Autonomo
Giardino:
Privato
Mostra tutto
Prezzo Prezzo
€ 1.400.000
Rata mutuo Rata mutuo
€ 6.651 / mese
Spese annue Spese annue
€ 0
Proponi il tuo prezzoProponi il tuo prezzo

Altre caratteristiche

Descrizione dei locali
Bagno antibagno

Classe Energetica

C
C
C
C
C
C
C
C
C
EP globale non rinnovabile:
127.23 kW h/m² anno
EP globale rinnovabile:
127.23 kW h/m² anno
EP invernale del fabbricato:
EP estiva del fabbricato:
Anno di costruzione:
2025
Riscaldamento:
Autonomo
Tipo impianto:
Ad aria
Tipo alimentazione:
Aria

Ti interessa visionare l'immobile?

Fissa un appuntamento  Fissa un appuntamento

Richiedi informazioni

Clicca su Leggi per aprire l'informativa
* Questi campi sono obbligatori

Calcola il tuo mutuo

Semplice e senza impegno
Anticipo

( % )
Mutuo

( % )

pochi semplici passi

inserisci i tuoi dati
Questionario completato
Grazie per aver richiesto un appuntamento senza impegno con un nostro Consulente del Credito e Assicurativo.

Hai inserito correttamente tutti i dati necessari e a breve riceverai una e-mail con un link da convalidare per inviare i tuoi dati.
Affiliato
Studio Industriale Castelfranco Srl
Via Spagna, 6 31033 Castelfranco Veneto (TV)

Il nostro staff


  • Federico Zanon
    Affiliato

  • Nicola Pandin
    Affiliato
Via Spagna, 6 31033 Castelfranco Veneto (TV)
Zona: Castelfranco Veneto
Mostra su mappa
Affiliato
Studio Industriale Castelfranco Srl
Via Spagna, 6 31033 Castelfranco Veneto (TV)

2026 Tecnocasa Franchising S.p.A. - P. IVA 08365160152 - Via Monte Bianco 60/A 20089 Rozzano (MI). Ogni agenzia ha un proprio titolare ed è autonoma. Privacy policy | Policy utilizzo | Cookie policy